Terreno Medianeira
Estrada Do Conde, 3500, Medianeira - Eldorado Do Sul/Rs

Ninguém esquece esse imóvel! Ele já recebeu 112 visualizações.
Terreno em condominio fechado
Oportunidade Única! Terreno Residencial à Venda no Peninsula Ponta da Figueira
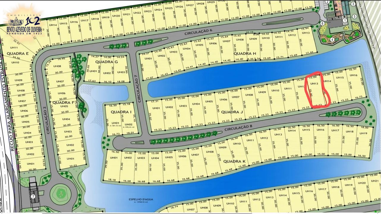
Se você está em busca do local ideal para construir a casa dos seus sonhos, esta é a sua chance! Apresentamos um terreno desocupado, pronto para receber o seu projeto de vida. Localizado no Condominio Ponta da Figueira número 3500 da Estrada do Conde, no bairro Medianeira, este terreno possui 529m² de espaço para você transformar em um lar acolhedor.
Localização Privilegiada:
Eldorado do Sul, no estado do Rio Grande do Sul, é uma cidade que oferece qualidade de vida e tranquilidade, além de estar em constante crescimento e valorização. Com fácil acesso a serviços, comércios e lazer, este terreno está pronto para receber a sua futura residência.
**Valor de Venda: R$ 650.000,00**
Aproveite esta oportunidade de investimento e realize o seu sonho de construir a casa ideal para a sua família.
Não perca tempo, agende agora mesmo uma visita e venha conhecer de perto este condominio e o terreno que pode ser o cenário dos seus melhores momentos! Entre em contato conosco para mais informações e para agendar uma visita.
Características
Acesso asfaltado
Pet friendly
Muro

















