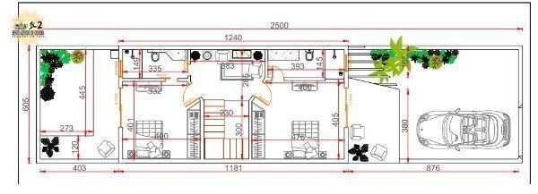
Casa 3 Quartos Hípica 173m²
Rua Luzinete Alves Aragon, 528, Hípica - Porto Alegre/Rs
Venda Sob consulta
CÓDIGO: 272294-DMI Favorito

272294-DmiCódigo
3Quartos
1Suite
2Banheiros
2Vagas
173 m2Privativos
150 m2Totais
9Visualizações
Casa para Venda - 173.88m², 3 dormitórios, sendo 1 suites, 2 vagas - Hípica Boul
Belissimo sobrado em construção, construtora com acabamento diferenciado e de alto padrão construtivo. Em rua tranquila , próximo as facilidades do bairro , supermercado , praça , farmácia. Sobrado com 3 dormitórios sendo uma suite , amplo living com dois ambientes , cozinha americana , área de serviço fechada, pátio. No andar superior , suite master com sacada , dois dormitórios e banheiro social. Casa impecável.

